Oferta
ul. Św. Antoniego (Swadzim)
Geoportal
Zobacz na telefonie
Informacje podstawowe
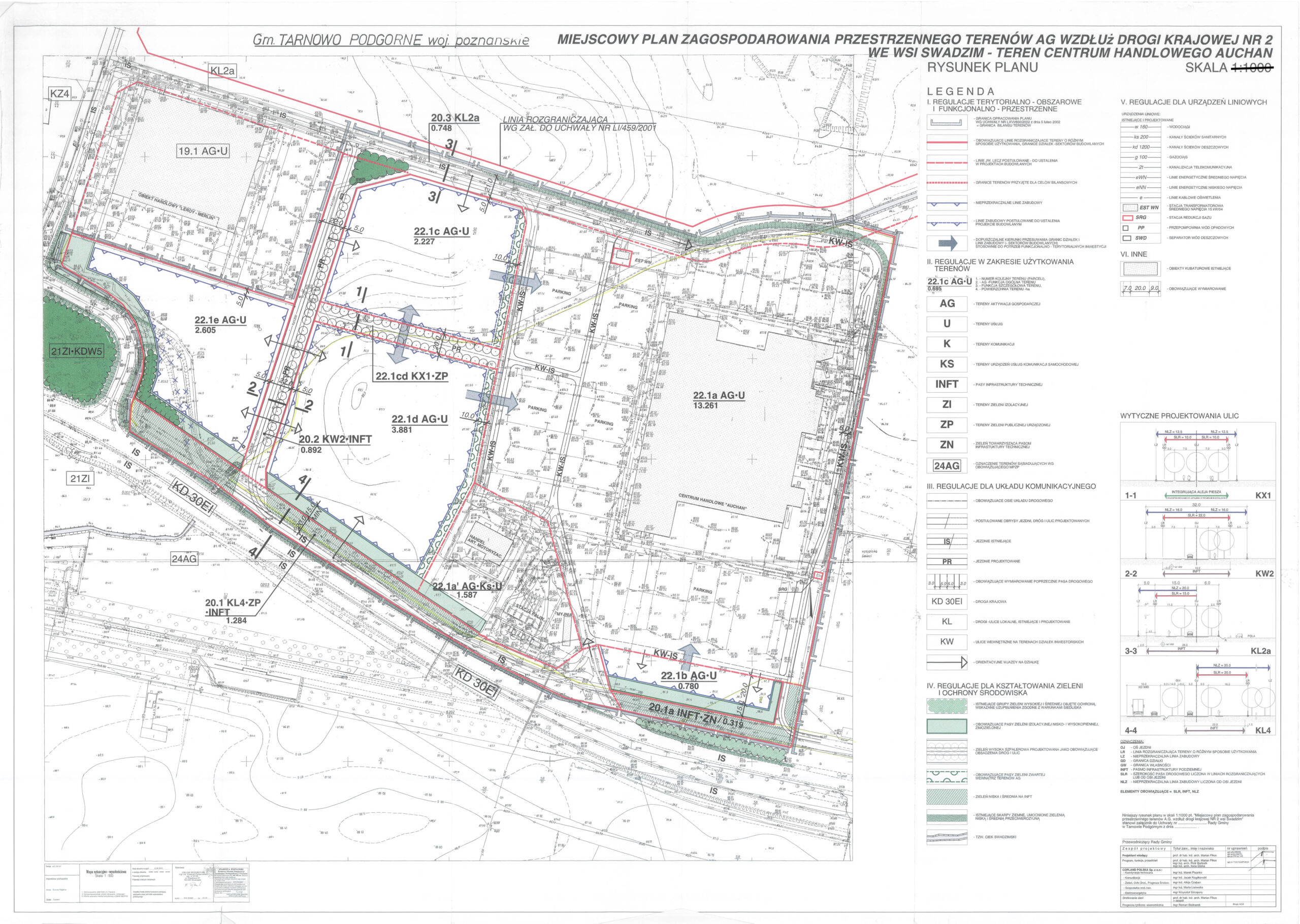
Oferujemy na sprzedaż atrakcyjną nieruchomość inwestycyjną o powierzchnia około 1,35 ha położoną w Swadzimiu, z dostępem do ul. Św. Antoniego, bezpośrednio połączonej z trasą nr 92.
Działka przeznaczona pod zabudowę obiektami handlowo-usługowymi o powierzchni sprzedaży powyżej 2 000 m². Plan miejscowy dopuszcza również realizację inwestycji towarzyszących, takich jak obiekty gastronomiczne, hotelowe, rzemieślnicze, motoryzacyjne, sportowe, rekreacyjne oraz kulturalne.
Parametry zabudowy:
- Powierzchnia zabudowy: maks. 60–70%
- Powierzchnia biologicznie czynna: min. 25%
- Wskaźnik intensywności zabudowy: 0,7–1,2
- Maksymalna wysokość zabudowy: 12–15 m
Plan miejscowy wyklucza inwestycje szczególnie uciążliwe lub wymagające raportu oddziaływania na środowisko.
Doskonała lokalizacja przy głównej trasie oraz szerokie możliwości inwestycyjne sprawiają, że działka stanowi atrakcyjną ofertę dla firm poszukujących terenu pod rozwój działalności handlowej i usługowej.

